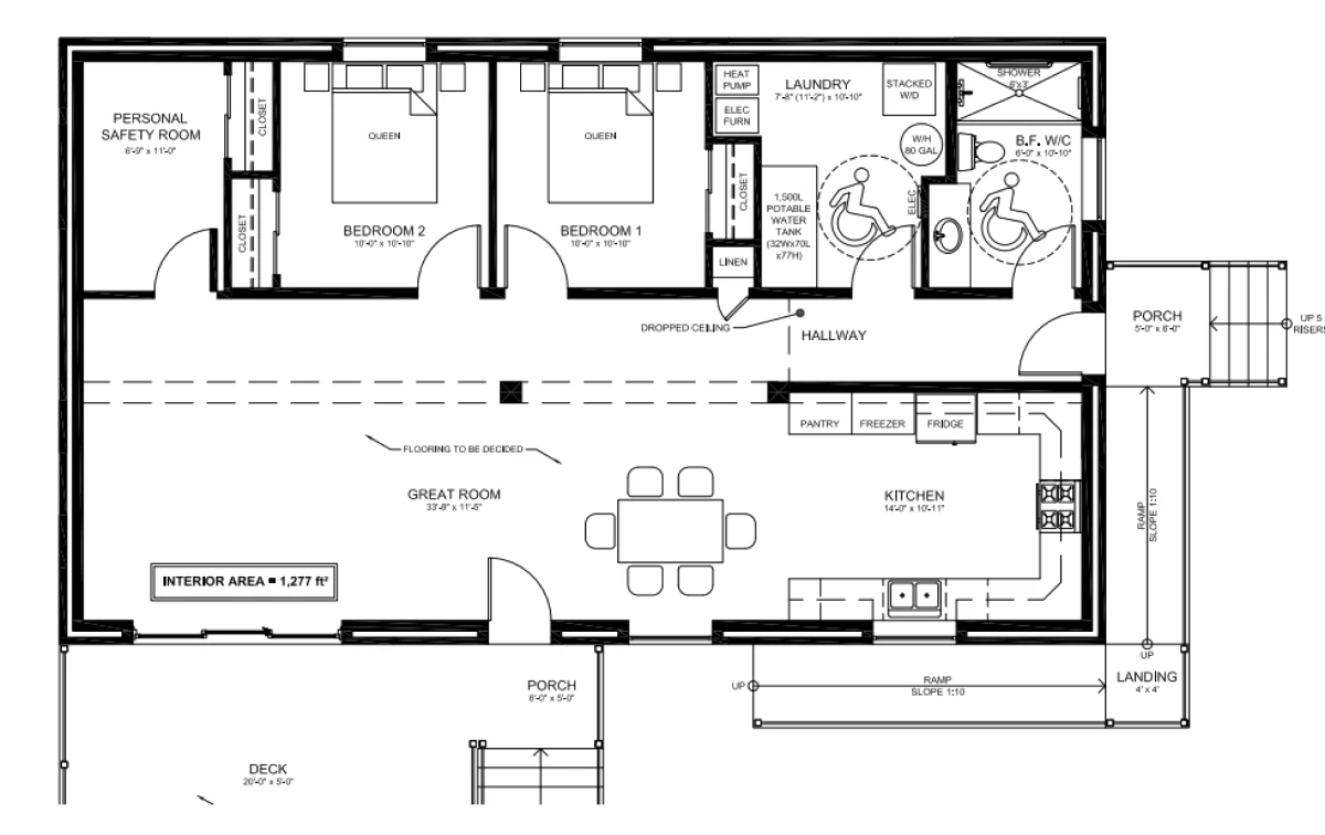
Lucky Man Cree Nation Residence

Lucky Man Cree Nation

Designer

Vereco Smart Homes

Builder

CFN Construction Ltd. ABMT Wood Solutions Ltd

Location

Lucky Man Cree Nation

Square Footage

2000 sq/ft

Residential home that checks all the boxes of sustainable housing.

This 1,500-square-foot Net Zero home demonstrates the application of our products in creating sustainable and culturally significant residential buildings. Our NLT panels form the core structure, contributing to a highly energy-efficient and beautiful home for the community.

Gallery